Appartement verhuurd in Lebbeke

Nieuwbouw BEN-Duplex te huur incl. autostaanplaats

Lange Minnestraat 3, 9280 Lebbeke

Omschrijving

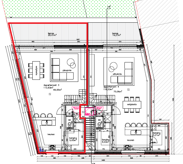
Te Lebbeke hebben wij een duplex appartement te huur. Dit in een kleine residentie van 4 éénheden, genaamd residentie ‘Olijftak’.
De appartementen zijn gebouwd met oog voor esthetiek en heel belangrijk, bijna energiezuinig. Waardoor uw maandelijkse lasten zeer laag zijn. 
Zeer gunstig gelegen in een zijstraat van de Brusselsesteenweg, waar een sfeer heerst die heel gezellig is en aanvoelt als thuiskomen in een warme buurt. Tevens zijn winkels, scholen en openbaar vervoer op wandel- en fietsafstand.
Via de ruime trap bereikt u de duplex. Er is een gastentoilet voorzien.
De eet- en zitruimte, aansluitend op de volledig ingerichte keuken, hebben grote raampartijen, dewelke je een zeer open en ruimtelijk gevoel geven. Aansluitend tref je een geweldig terras aan van maar liefst 20,4m².
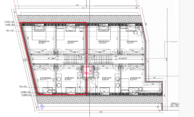
De duplex beschikt over 3 slaapkamers waarvan 1 geschikt is als 1-persoonskamer, bureau, dressing of dergelijke.
Een aangenaam grote badkamer met dubbele lavabo en ruime inloopdouche. Er is ook een toilet voorzien.
Achteraan is er een autostaanplaats dewelke is inbegrepen in de huurprijs.  (Mogelijkheid om laadpaal te plaatsen).
De gemeenschappelijke kosten worden geraamd op 50,00 euro.
De oplevering van de appartementen is gepland voor de 2de helft van mei 2026. Vanaf die datum zal ook het EPB beschikbaar zijn.
U kan nu reeds een afspraak plannen voor een bezichtiging. Gelieve hiervoor uw gegevens door te mailen naar info@bessems.immo. Of telefonisch contact op te nemen.  
 

1

3

130 m²